609 Emmet Street

Ypsilanti, MI 48197

About this property

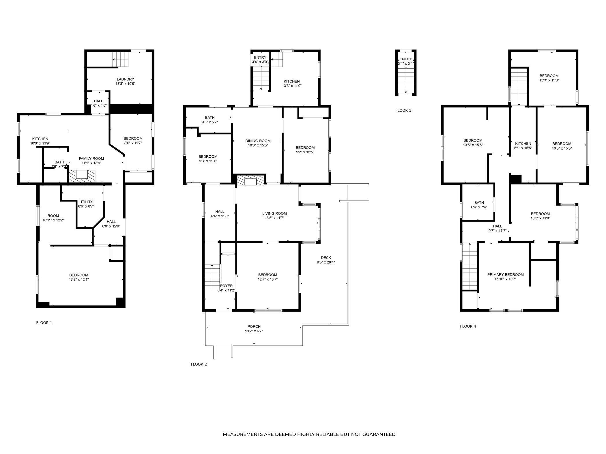
3 units each with separately leased bedrooms. The Second floor has a galley kitchen, bath and 4 bedrooms. The main floor has 3 bedrooms, kitchen and living room. The basement has 2 bedrooms, kitchen and laundry access for the entire building. Fully rented month to month. Each tenant on month to month lease. Rents range $350-$650. Utilities are included. Currently half of the tenants have been there long term with minimal rent increases Walking distance to EMU 5 off street parking spots and storage shed included.

About this property

3 units each with separately leased bedrooms. The Second floor has a galley kitchen, bath and 4 bedrooms. The main floor has 3 bedrooms, kitchen and living room. The basement has 2 bedrooms, kitchen and laundry access for the entire building. Fully rented month to month. Each tenant on month to month lease. Rents range $350-$650. Utilities are included. Currently half of the tenants have been there long term with minimal rent increases Walking distance to EMU 5 off street parking spots and storage shed included.

Features and Additional Information

Schedule a Tour
It's free and no obligation

Schedule a Private Showing

$399,000 Active Contingent
0 sqft

Presented By My Smart Team

Agent Image
Get in touch today! Phone: 1-517-295-3948
Brokerage
Key Realty One LLC
1-734-273-9083
Curious to find out what your home is worth?
Get My Home's Worth arrow_forward

Area Information

Ann Arbor | Washtenaw A | Washtenaw County |

$ 399,000
This listing is play_arrow 40.0% higher than the average in the area
$ 285,000 in the area
0 SqFt
This listing is play_arrow 0% larger than the average in the area
0 SqFt in the area
$ 0 $/SqFt
This listing is play_arrow 0% less than the average in the area
$ 0 $/SqFt in the area
92 days on site
This listing is play_arrow 62.8% above the average in the area
57 days on site in the area

Schools in the Area

  • turned_in
    Elementary School
  • turned_in
    Middle School
  • turned_in
    High School
    Ypsilanti
Listed By Diane Hudzik
Brokerage: Key Realty One LLC

Schedule a Private Showing

It's free and no obligation

Have Questions? Contact
My Smart Team

By submitting, you agree to receive promotional texts and/or calls from My Smart Team Powered By Production Realty at the number provided. Message/data rates may apply. Consent is not a condition of purchase, and you can opt out anytime by replying STOP.
Real Estate Links Our Domains